Ładowanie...
Historia powstania i rozwoju naszej parafii.
Spis treści
Parafia Czyżyny została erygowana 15 IV 1951 r...
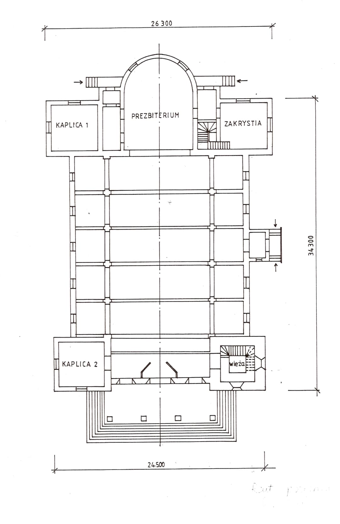
Kościół zbudowany jest z cegły na podmurówce kamienno–betonowej...